Raucherunterstand, Zweiradüberdachung, Personenunterstand - Modell Siegen
Überdachung Modell Siegen: Modulare Bauweise, schnell aufgebaut und leicht erweiterbar
Die Überdachung Modell Siegen bietet eine praktische Lösung in kürzester Zeit. Dank Modularer Bauweise kann das System leicht vergrößert werden, egal ob für einen Raucherunterstand oder Fahrradunterstand.
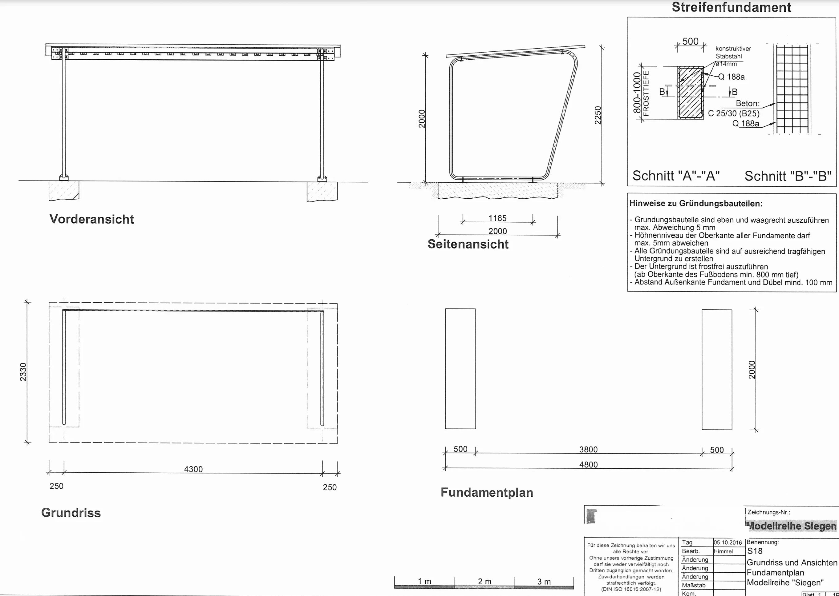
Das Grundsystem besteht aus einem wetterfesten Pultdach mit Trapezblecheindeckung und einer verzinkten Rundrohrkonstruktion aus Stahl verzinkt. Die Lieferung erfolgt als Bausatz zur Eigenaufstellung mit einfacher Montageanleitung.
Überdachungssystem Modell Siegen
Das Modell Siegen ist die ideale Lösung für alle, die eine funktionale und schnell verfügbare Überdachung suchen. Durch die konsequent modulare Bauweise passt sich das System flexibel an Ihre Anforderungen an – vom kompakten Unterstand bis hin zur weitläufigen Überdachungsreihe. Ob als Wetterschutz für Fahrräder oder als geschützter Raucherbereich, das Modell Siegen überzeugt durch eine unkomplizierte Handhabung und hohe Langlebigkeit im gewerblichen und öffentlichen Raum.
Materialwahl und Fertigungstechnik
Die Konstruktion basiert auf einem bewährten System aus robusten Rundrohren und wetterfesten Profilblechen. Die technische Ausführung ist auf einen dauerhaften, wartungsarmen Einsatz im Außenbereich ausgelegt:
- Stahl verzinkt: Die Rundrohrkonstruktion ist durch die Feuerverzinkung optimal vor Korrosion geschützt und bildet ein stabiles statisches Gerüst für jede Wetterlage.
- Pultdach mit Trapezblech: Die Dacheindeckung aus robustem Profilblech hält auch hohen Belastungen stand und sorgt für einen zuverlässigen Schutz vor Regen und Schnee.
- Intelligente Entwässerung: Eine dreiseitig umlaufende, geschraubte Blende leitet das Regenwasser gezielt nach hinten ab. Auf Wunsch können zusätzlich Regenrinnen und Fallrohre integriert werden.
- Optionale Wandelemente: Für einen erhöhten Wind- und Sichtschutz lassen sich passende Seiten- und Rückwandelemente flexibel in das Grundsystem ergänzen.
Einfache Planung und Montage
Der Weg zu Ihrer neuen Überdachung ist dank des durchdachten Bausatzsystems besonders effizient gestaltet. Das Modell Siegen lässt sich aufgrund seiner Modulbauweise zeitnah planen und in Betrieb nehmen.
Wir unterstützen Sie in der flexiblen Gestaltung Ihres Projekts:
- Modular erweiterbar: Das System kann durch praktische Erweiterungsmodule auch nachträglich jederzeit vergrößert werden, falls sich Ihr Bedarf an Unterstellplätzen erhöht.
- Bausatz zur Eigenmontage: Die Lieferung erfolgt als kompletter Bausatz inklusive einer leicht verständlichen Montageanleitung, sodass die Aufstellung schnell und kostengünstig in Eigenregie durchgeführt werden kann.














































